• +86 15603721115
  • Building 1, Cross-border E-commerce Industrial Park, Comprehensive Bonded Zone, Zhengpugang New District, Maanshan City, Anhui Province,China
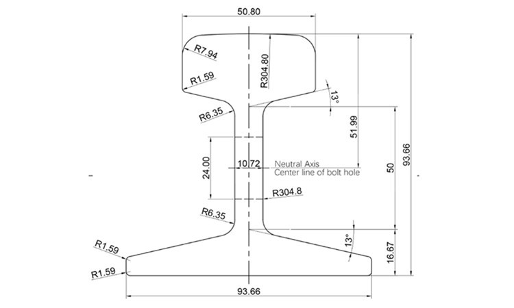
45 LBS Rail Dimensions and Manufacturers

45 lbs rail is a rail product designed and produced according to the American AREAM standard. 45 LBS rail weighs 45 pounds per yard, hence the name 45 lbs rail.

 

ASCE rails are designed for light overhead cranes, mining rails, automated warehouse retrieval systems and other industrial applications.

 

Kingrail Parts can supply high-quality, competitively priced heavy rails. ASCE45 rails/45 lbs rails are one of the light rails.

 

Kingrail Parts is a trusted rail product manufacturer with more than 20 years of experience, dedicated to providing materials and solutions for the rail industry. After years of development, we have established strict rail product quality management specifications and established reliable partnerships with customers in more than 30 countries.

 

Customized Options

Rail Processing: Pre-drilling, bevel cutting and welding services for quick installation.

Accessories: High-strength fishplates, rail anchors and rail clamps, providing a complete rail solution.

 

Specifications

Parameters

type

weight (kg/m)

material

length (m)

22Kg

22.30

Q235/55Q

6-10m

rail height (mm)

bottom width (mm)

head width (mm)

web thinkness (mm)

93.66

93.66

50.8

10.72


Drawings

 

Get more help

Please contact us for more information and a quote.

Drop Messages:

Please contact us with any concerns or questions you have.