• +86 15603721115
  • Building 1, Cross-border E-commerce Industrial Park, Comprehensive Bonded Zone, Zhengpugang New District, Maanshan City, Anhui Province,China
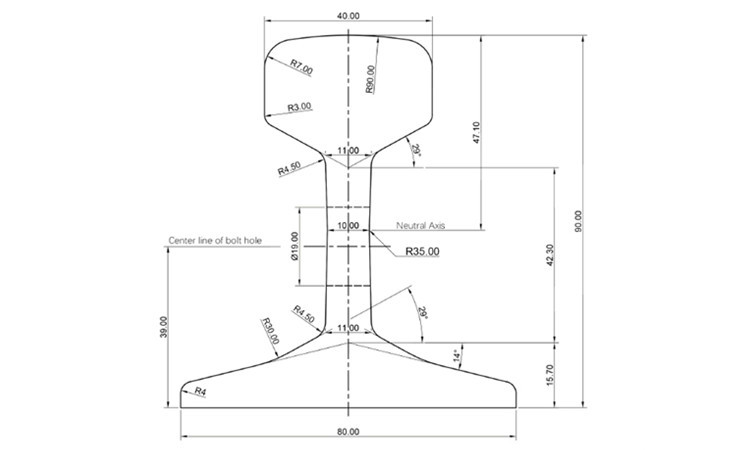
18KG Rail Specifications and Drawings

18 kg rails are used for transporting ore on mining railway lines. We always have them in stock and can deliver them in time. They are available in 6m, 8m and 10m lengths and made of Q235 and 55Q.

 

18 kg rails are commonly used in mine transportation systems and are designed for light to medium-duty tracks in underground and open-pit mines. This rail weighs 18 kg per meter, which is heavier than the 15 kg rail, making it suitable for vehicles with slightly higher load-bearing capacity, and is commonly used to transport mine cars, mine wagons and locomotives.

 

Kingrail Parts is a reliable rail product manufacturer with more than 20 years of experience, dedicated to providing materials and solutions for the rail industry. After years of development, we have established strict rail product quality management specifications and established reliable cooperative relationships with customers in more than 30 countries.

 

We can provide high quality 18kg rails, if you have any questions about 18kg rails, welcome to contact us.

 

Customization Options

Rail Processing: Pre-drilled bolt holes, miter cuts, and welding services for rapid installation.

Accessories: High-strength fish plates, anti-creep anchors, and crane rail clamps available for complete track solutions.

 

Specifications

Size

Rail height(mm)

Bottom Width(mm)

Head Width(mm)

Web Thickness(mm)

Weight(kg/m)

18kg

90

80

40

10

18.06


Drawings

 

Get more help

Please contact us for more information and quotation.

Drop Messages:

Please contact us with any concerns or questions you have.